Built area: Total 390 m2 Status: Detailed Design
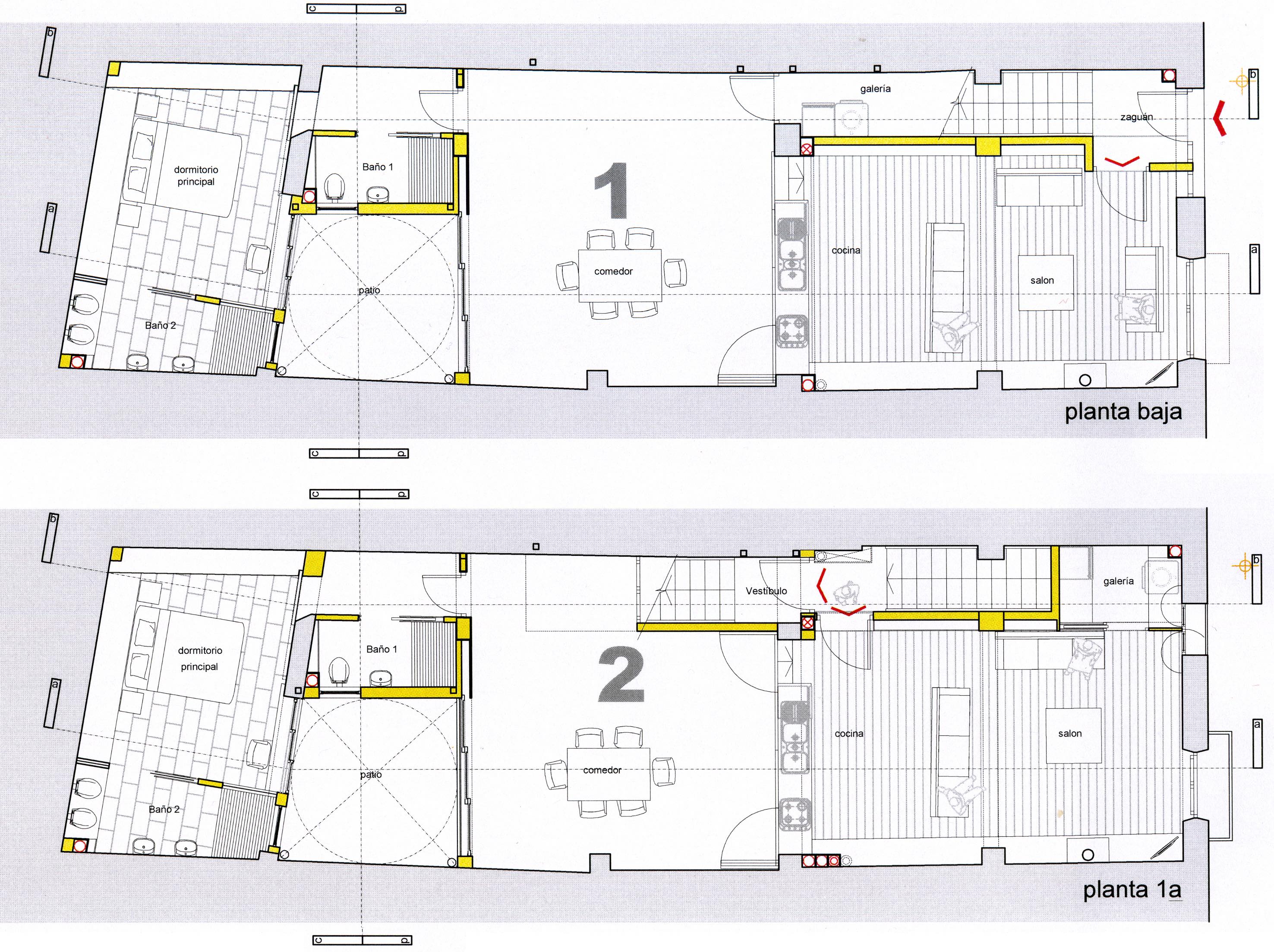
Project type: This project involves the conversion of an existing townhouse into three one-bedroom, en-suite apartments, carefully designed to balance heritage sensitivity with contemporary living standards. Owing to the poor structural condition of the original building, all elements except the front façade were demolished for cost and safety reasons. Retaining the façade preserves the established rhythm and character of the streetscape, while allowing a new, efficient structure to be constructed behind it.

The internal distribution is repeated across the three floors, each apartment accessed from a shared communal staircase that encourages casual neighbourly interaction while maintaining privacy at each threshold. The layout on every level has been rationally planned to maximise light, storage and spatial efficiency within a compact footprint. Although configured as generous one-bedroom units, the apartments have been designed with future adaptability in mind, allowing for potential conversion into two-bedroom layouts should occupancy needs change. This flexibility enhances long-term value and sustainability.

Construction techniques were deliberately selected to enable a crane-free build, reducing both cost and disruption in the tight urban setting. Lightweight materials, modular elements and carefully sequenced assembly allowed the project to be delivered efficiently within site constraints.

The top-floor apartment benefits from a private roof terrace, offering elevated outdoor space and views beyond the surrounding rooftops. At ground level, the development engages with a nearby square defined by a colonnade and a series of smaller, cellular volumes that create more intimate social groupings.

This spatial arrangement provides a subtle transition from public to semi-private realms, reinforcing a sense of community while respecting the finer grain of the urban context.






